プライバシーと開放感、その両立
チェックポイント
-
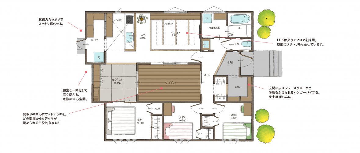
住まいの真ん中に、家族が集まる中庭を。
ロの字型の間取りが生み出す、住まいの中心に広がるウッドデッキの中庭。どの部屋からも自然と視線が集まり、光と風が家全体をやさしく巡ります。外部からの視線を遮りながら、空だけは大きく開放。家族がそれぞれの場所にいながら、常に気配を感じ合える、心地よいつながりを育む住まいです。
-
人目を気にせず、空の下で楽しむ贅沢な時間。
外からの視線をコートラインでやさしく遮りながら、たっぷりの陽の光を取り込む中庭空間。プライバシーを守りつつ、青空の下でBBQや食事を楽しめる贅沢なアウトドアリビングが、日常の延長に広がります。人目を気にせず、家族や仲間と過ごす時間が、何気ない一日を特別な思い出へと変えてくれます。
-
外に開かず、内にひらく。安心を育む中庭。
敷地に余裕がなく庭を確保しにくい住まいでも、中庭を設けることで安心のプライベートゾーンを実現。外部に面さない配置だからこそ、防犯性に配慮しながら、開放感のある空間を楽しめます。窓を開けても人目を気にすることなく、家族だけの時間を守る。中庭は、暮らしに安心とゆとりをもたらします。
-
扉の先に広がる、わが家だけの特別な景色。
玄関を開けた瞬間、目の前に広がる大きな窓とプライベート中庭。中央に佇むシンボルツリーが、住まいの顔として家族やゲストをやさしく迎え入れます。外と内を緩やかにつなぐこの景色が、日常に特別感をプラス。帰宅するたび、心がふっとほどける、印象的な住まいのはじまりです。
Reserve
来場予約申し込みフォーム
下記フォームに必要項目をご入力ください。
※必須項目は必ずご記入ください。
-
STEP1入力
-
STEP2確認
-
STEP3完了



